Page suivante
Page précédente
Bougival (78380)

Maison 7 pièce(s) 5 chambre(s) 226 m²

1
2
2
1 295 000 €
Réf 78380-16024

Equinimo Prestige vous propose à la vente cette maison individuelle et non mitoyenne de 226m² avec jardin privatif sur une parcelle de 1 058m², accessible par une allée sécurisée, située rue de la Mare à 800m de la gare de Louveciennes.

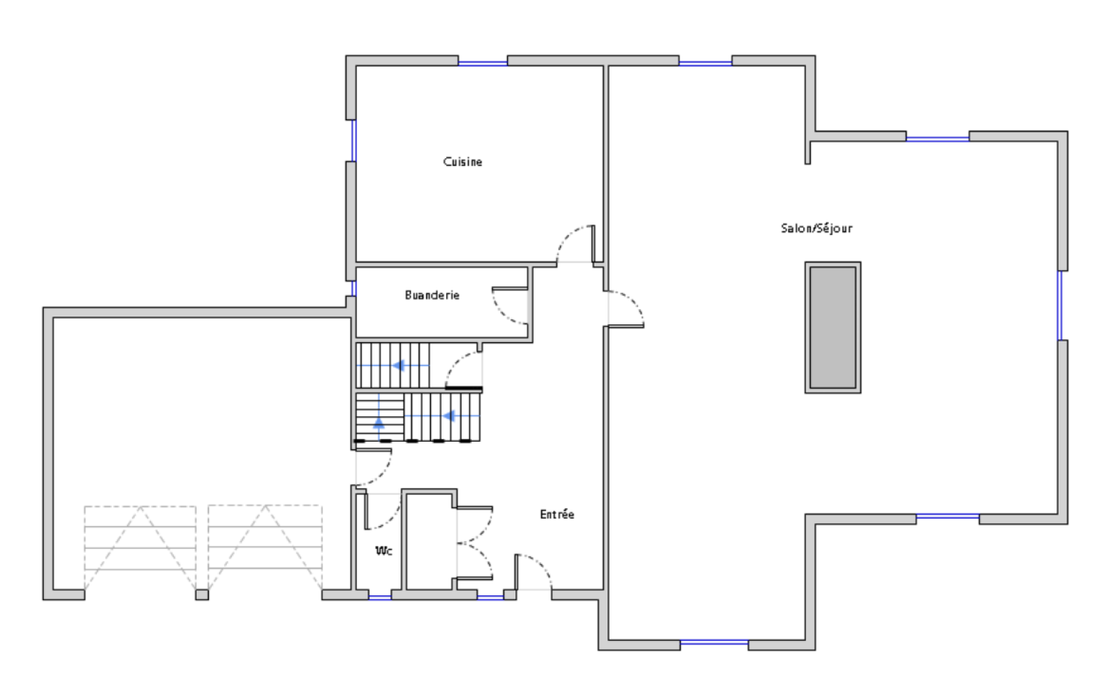
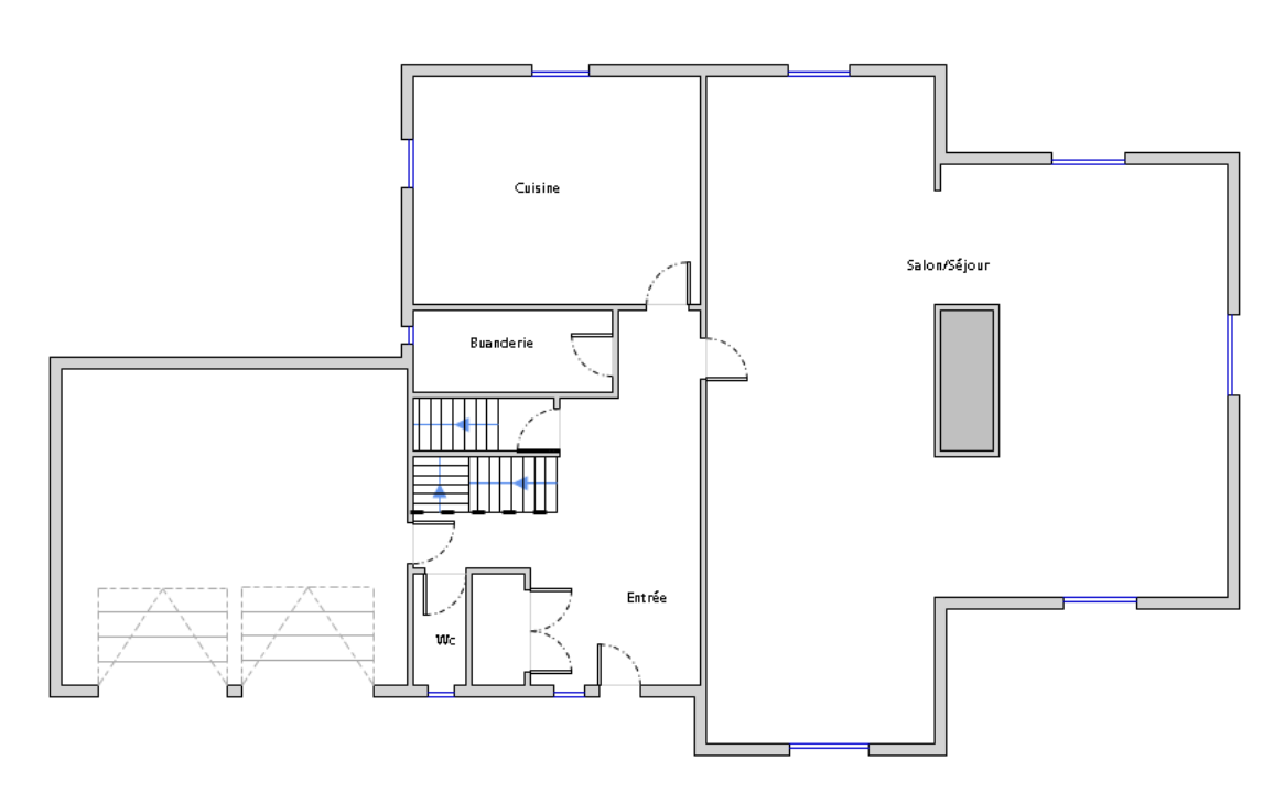
La maison, lumineuse et en très bon état, se compose :

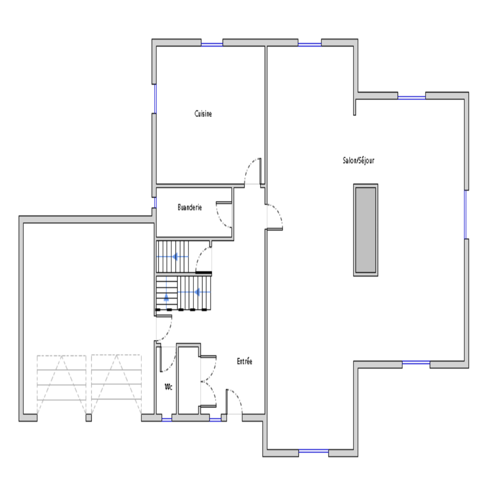
- Au rez-de-chaussée d'une entrée avec rangements, d’un séjour-salle à manger de 81m² (possible cinquième chambre) avec terrasse, d’une cuisine séparée, aménagée et équipée de 14m², d'un cellier de 4,50m², d'un WC indépendant et d'un accès au garage

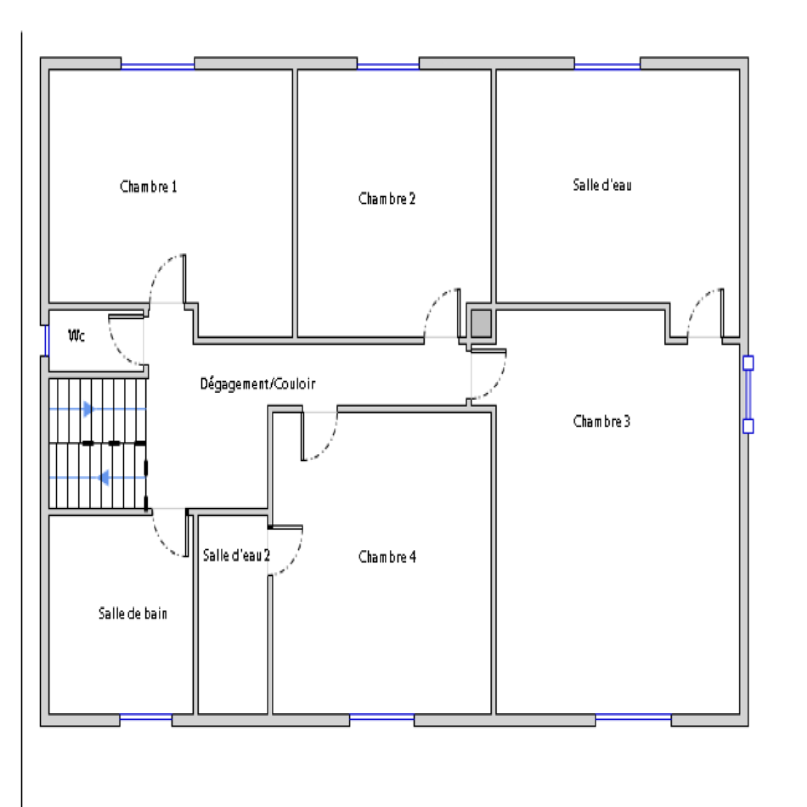
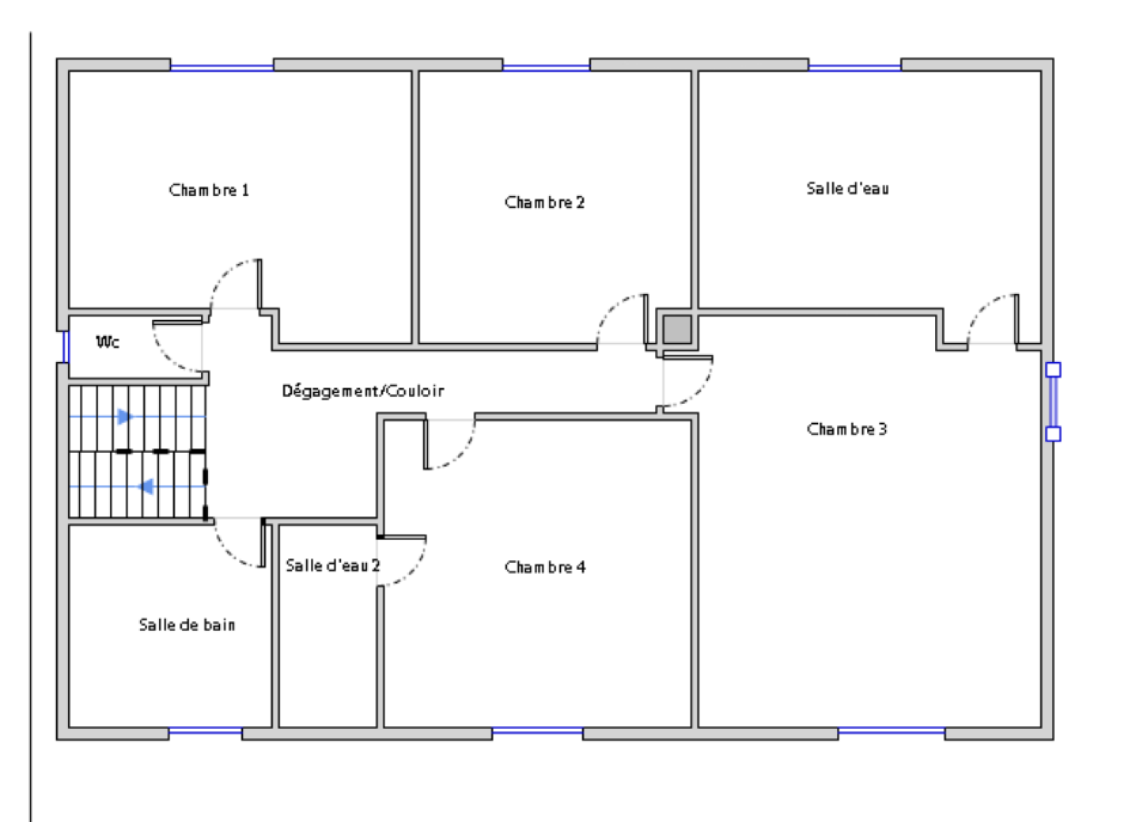
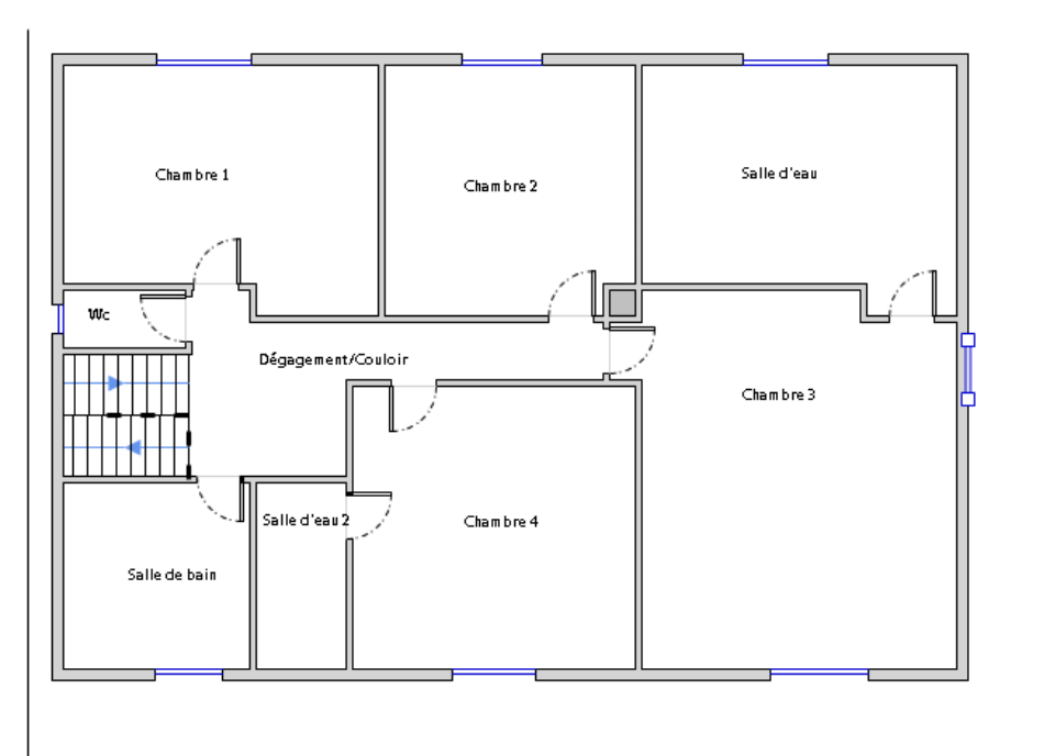
- Au 1er étage d'une chambre parentale de 19,50m² avec salle d'eau de 11m², d'une chambre de 18,50m² avec salle d'eau de 3,50m², de deux chambres de 14,50m² et 17,50m², d'une salle de bains de 7,50m² et d'un WC indépendant

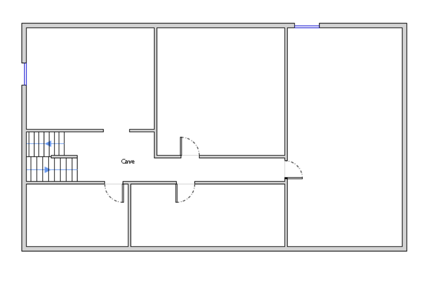
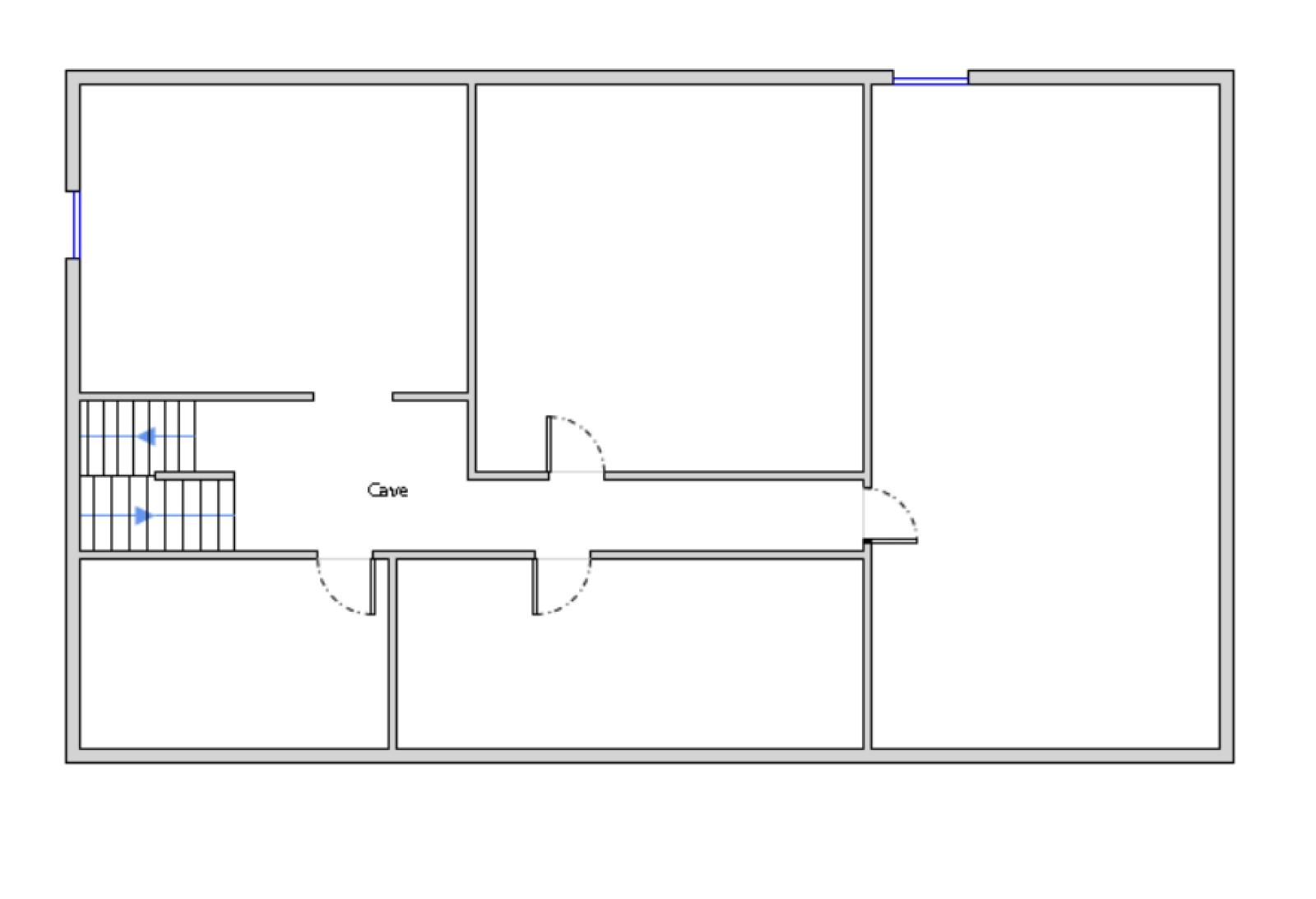
- Au sous-sol de plusieurs pièces dont une buanderie et une potentielle salle de cinéma

Le bien bénéficie d'une cheminée, de rangements intégrés, de fenêtres en double vitrage, de volets électriques et de panneaux solaires. Le jardin dispose d'une serre et de plusieurs arbres fruitiers.

La taxe foncière est de 3 879 euros.


Zone soumise à une obligation légale de débroussaillement.
Les informations sur les risques auxquels ce bien est exposé sont disponibles sur le site Géorisques

Bilan énergétique

Diagnostics énergetiques
A propos de ce bien Caractéristiques de ce bien
  • Surface 226 m²
  • carrez 206 m²
  • séjour 81 m²
  • 5 chambre(s)
  • 1 salle(s) de bain
  • 2 salle(s) d'eau
  • construit en 1989
  • cuisine séparée (équipée)
  • 2 garage(s)
  • exposition Sud-Ouest
  • 3 niveau(x)
  • terrasse

Financier

Informations financières
Prix de vente 1 295 000 € Les honoraires d'agence seront intégralement à la charge du vendeur

Autour du bien

Découvrez le quartier

Simulation

Calcul des mensualités
* Champs obligatoires
Nicolas Millet Négociateur

Alerte e-mail

Nos biens directement
dans votre boite mail !