Page suivante
Page précédente
La Garenne-Colombes (92250)

Appartement 6 pièce(s) 2 chambre(s) 118.25 m²

Réf NIM20190702-1489
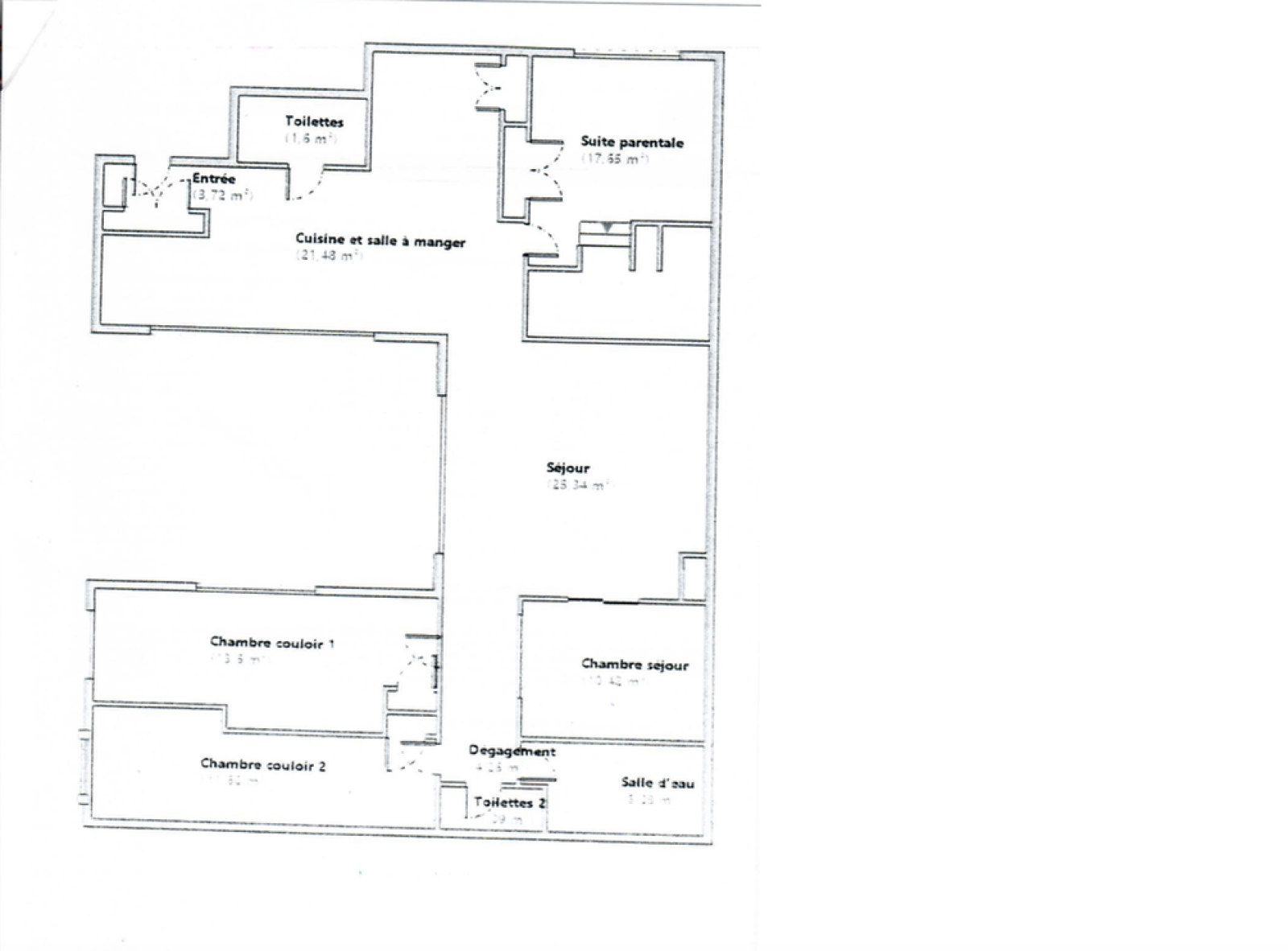
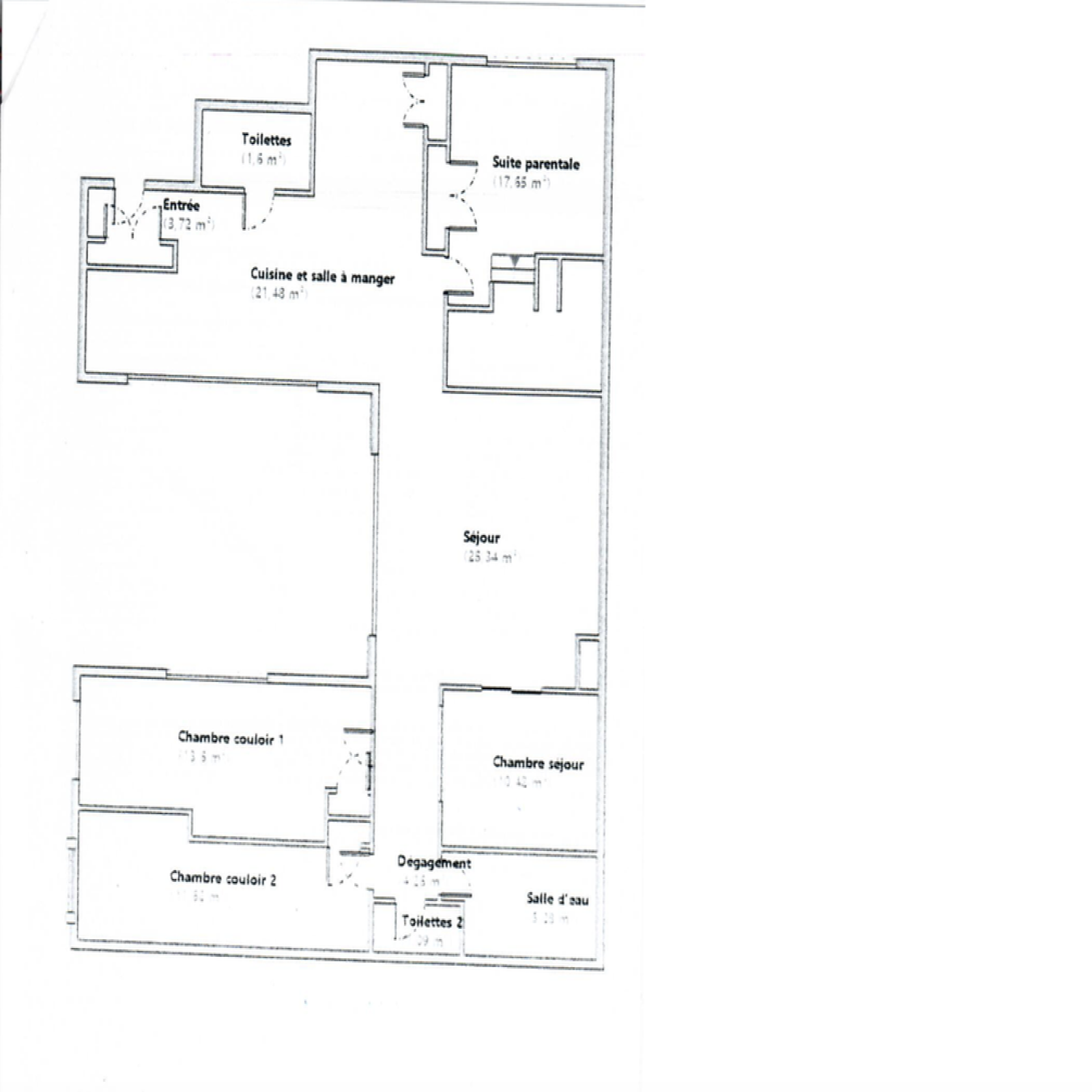
Equinimo vous propose à la vente cet appartement de 118.25m² (116m² loi carrez) au 1er étage sans ascenseur, situé rue Auguste Buisson à 700m de la gare des Vallées.L'appartement, lumineux et en très bon état, se compose d'un double séjour de 36m² donnant sur un jardin et orienté sud, d'une cuisine dînatoire de 21.50m², d'une suite parentale avec salle de bains et douche, de deux chambres de 12m² et 14m² avec mezzanine, d'une salle de bains et douche et de deux WC indépendants. Le bien dispose de parquet, de rangements intégrés et de fenêtres en double vitrage. Une place de stationnement est disponible en location.Les charges, de 197 euros par mois, incluent notamment l'eau froide et l'entretien des parties communes. L'eau chaude et le chauffage sont individuels électriques. Il n'y a pas de travaux à l'ordre du jour dans la copropriété selon les vendeurs.

Bilan énergétique

Diagnostics énergetiques
A propos de ce bien Caractéristiques de ce bien
  • Surface 118,25 m²
  • carrez 116 m²
  • séjour 36 m²
  • 2 chambre(s)
  • construit en 1950
  • Chauffage individuel : autre (electrique)
  • 1 étage(s)

Financier

Informations financières
Prix net vendeur 823 100 €
Charges 196,67 €

Autour du bien

Découvrez le quartier

Simulation

Calcul des mensualités
* Champs obligatoires
Nicolas Millet Négociateur

Alerte e-mail

Nos biens directement
dans votre boite mail !