Page suivante
Page précédente
Rueil-Malmaison (92500)

Appartement 4 pièce(s) 3 chambre(s) 82 m²

1 850 € CC*
Réf THR130226

Equinimo, l'agence à commission fixe la plus recommandée , vous propose à la location, à Rueil-Malmaison dans le quartier Buzenval, cet appartement de 4 pièces MEUBLÉ de 82 m², en bon état, traversant et situé au dernier étage, route de l’Empereur.

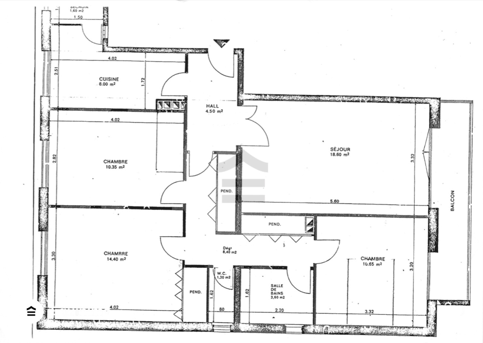
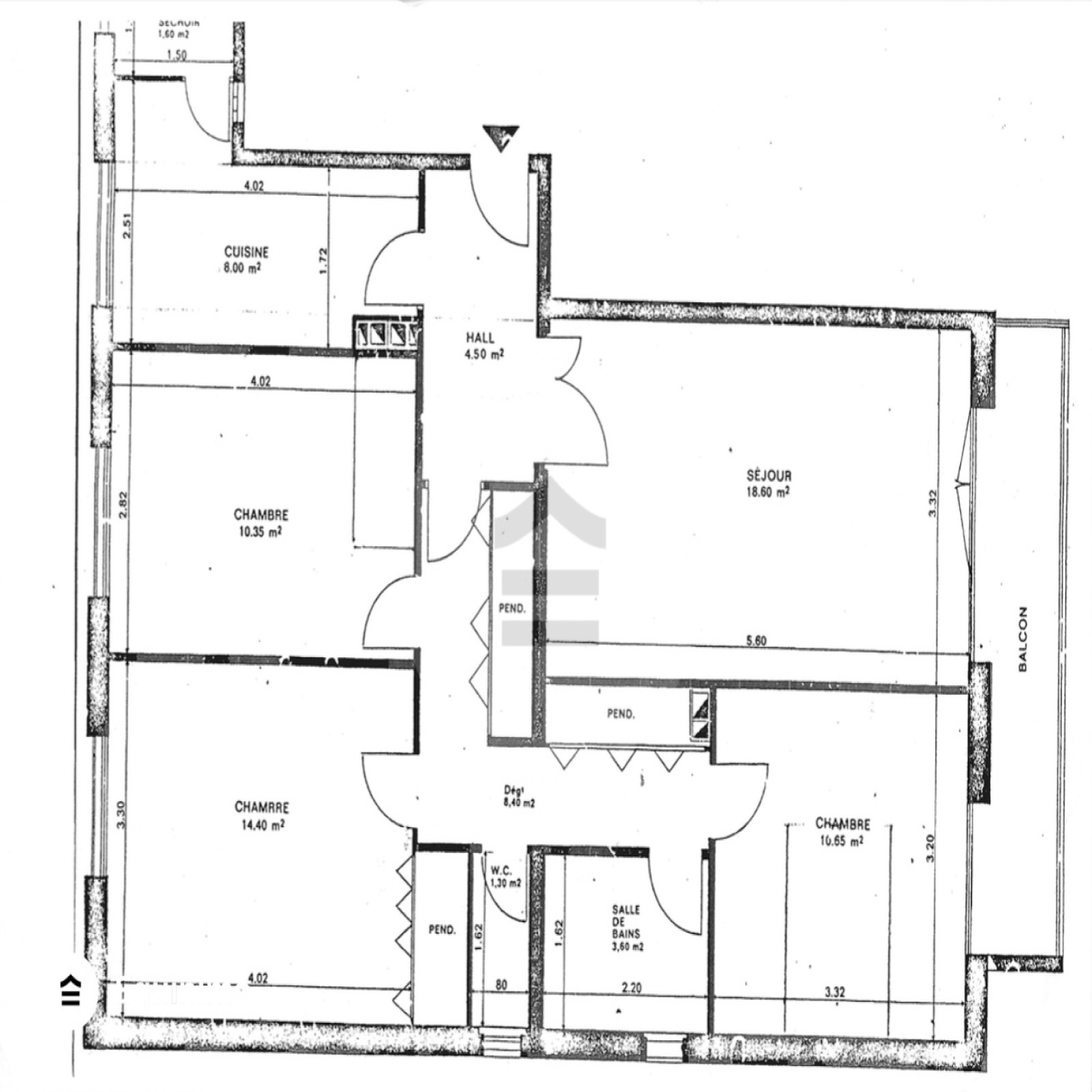
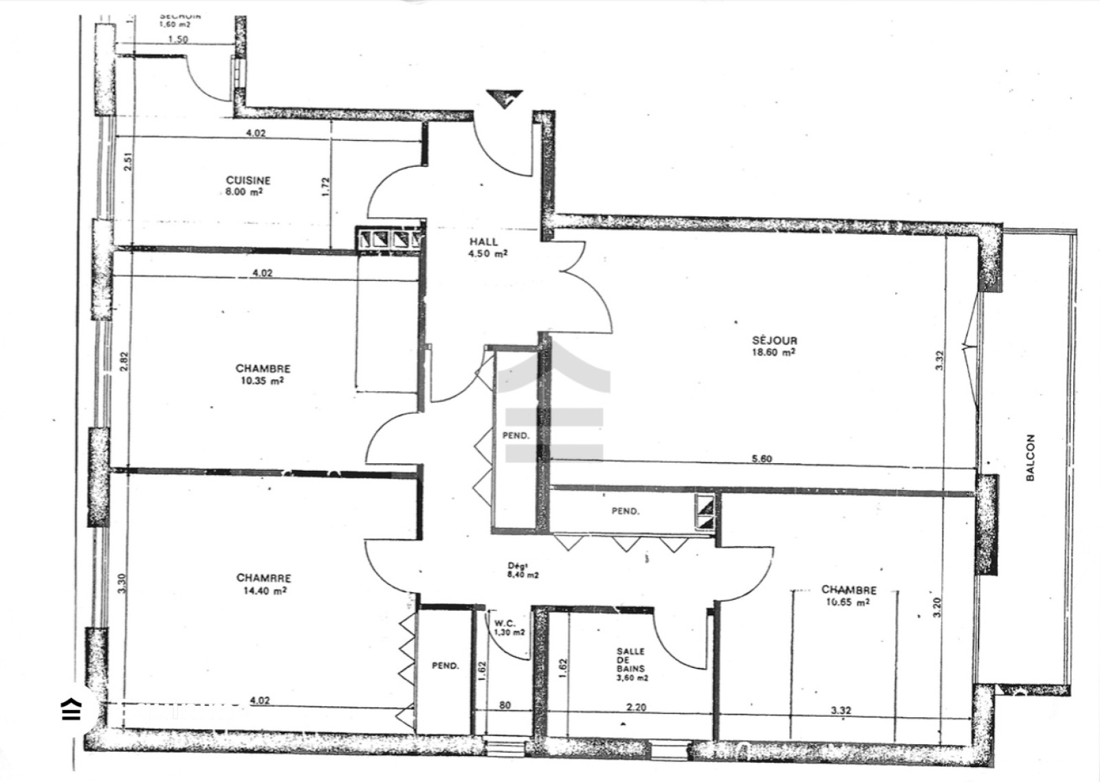
Ce bien, situé au 3ᵉ et dernier étage, se compose d'une entrée, d’un séjour de 19m² exposé Est avec accès au balcon, d’une cuisine séparée et aménagée avec un coin buanderie, de trois chambres exposé Ouest, d’une salle de bains et d’un WC indépendant.

Le bien bénéficie notamment de parquet, de nombreux rangements, ainsi que de fenêtres en double vitrage et de volets roulants électriques.

Une cave et une place de parking sont incluses dans la location de l'appartement.

Le loyer est de 1850 euros par mois dont 250 euros de charges (qui incluent notamment l’eau froide, l’eau chaude, le chauffage et l’entretien des parties communes).

Le dépôt de garantie est de 2500 euros.

Les honoraires de location d'élèvent à 1230 euros (984 euros pour la visite, l'étude de dossier et la rédacion du bail et de 246 euros la réalisation de l'état des lieux d'entrée).

Disponible immédiatement

Bilan énergétique

Diagnostics énergetiques
A propos de ce bien Caractéristiques de ce bien
  • Surface 82 m²
  • 3 chambre(s)
  • construit en 1970
  • Chauffage collectif : chaudière (autre)
  • exposition Est
  • 3 niveau(x)
  • interphone

Info copro

Copropriété
  • Copropriété Oui

Financier

Informations financières
Loyer CC* / mois 1 850 €
Dont état des lieux Non renseigné
Dépôt de garantie TTC Non renseigné
Charges locatives (forfaitaires mensuelles) 250 €

Autour du bien

Découvrez le quartier
Timothée Riou Négociateur

* CC : Charges comprises

Alerte e-mail

Nos biens directement
dans votre boite mail !